| 일 | 월 | 화 | 수 | 목 | 금 | 토 |
|---|---|---|---|---|---|---|
| 1 | 2 | 3 | 4 | |||
| 5 | 6 | 7 | 8 | 9 | 10 | 11 |
| 12 | 13 | 14 | 15 | 16 | 17 | 18 |
| 19 | 20 | 21 | 22 | 23 | 24 | 25 |
| 26 | 27 | 28 | 29 | 30 | 31 |
- 이진탐색
- 3079
- 브루트포스
- 그래프
- 괄호제거
- 큐
- 복잡도 측정
- useHeaderHeight
- 수정렬하기4
- 11831
- LV3
- ReactNative
- 2800
- 백준
- 자료구조
- 이분탐색
- TouchableWithoutFeedback
- 시간초과해결
- FlatList
- PYTHON
- 머신러닝
- KeyboardAvoidingView
- 딥러닝
- 그리디
- 프로그래머스
- 상담원 인원
- 17089
- 실버1
- React #새파일생성
- 골드5
- Today
- Total
지니 코딩일기
AutoCAD _04 평면도 그리기 본문
Exercise#3: Drawing a simple floor plan _평면도 그리기!
- LINE EDITING
- HATCHING
- DIMENSIONING
LINE EDITING
✔Trim (trim)
✔Extend (extend)
✔Explode (explode)
✔Stretch (stretch) -> 평면도 그리기에 유용
<TRIM & EXTEND>
- (trim)
- (shift + 클릭) -> 잘못 지운 선 원상복구(extend하는 것)
- (undo)하면 전부 되돌아옴
<EXPLODE>
- (explode) : 닫혀있는 하나의 polyline의 seperate한 부분들 파악
<STRETCH / GRIPS>
- (stretch) : 늘리기, 줄이기 할 수 있다 -> 매우 유용!!
- Grip이나 trim&extend로도 가능하지만 stretch가 편리함
- Point에서 stretch/add vertex/convert to arc 전환 가능
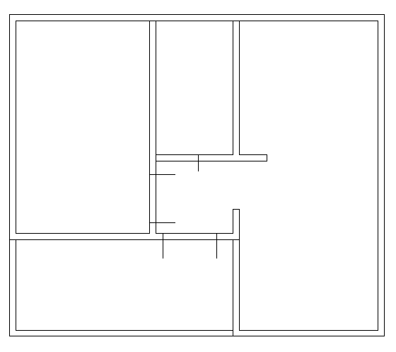
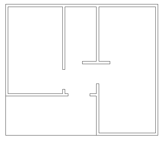
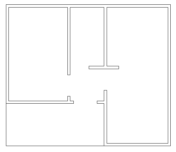
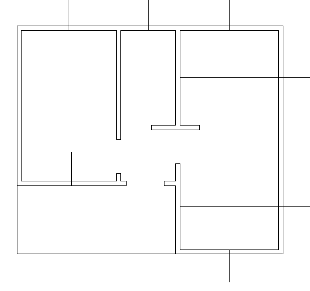
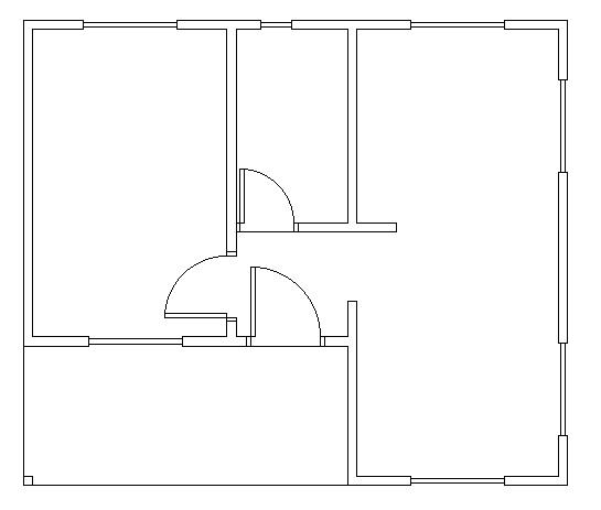
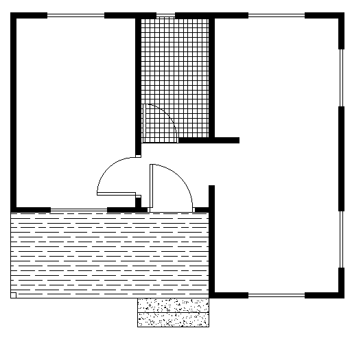
#mission1 _draw floor plan
- 바깥 틀 그리기 (rect)
- 벽 두께 표현 (offset) ->115 만큼 inward
- Room devision (pl로 scale보기_시작이 바깥 틀인지 안쪽 벽인지 확인!)

- Trim lines

- Cut openings in the walls
- Mark the doorways (LINE&OFFSET)
-문크기는 1000(300), 900(200), 800

- Organize the lines (TRIM&JOIN)

- Identify windows (LINE)
-모든 창문의 mid point를 표시

- Mark the window openings (OFFSET)
-하나를 제외하고는 모두 너비 같음(1200) / 작은 창문(400)

- Organize lines
-TRIM&JOIN (각각 join/porch현관 분리될 수 있도록)

-기둥(정사각형_rect) / 창문(일단은 rect로 mid point를 reference로 하는 직사각형->center에 위치)

- Add doors
- 문틀 만들기 2) 문 만들기(창문과 같은 원리) 3) 문 열리는 길 만들기(문 바깥쪽을 center로)


*문 밑의 선은 바닥이 달라진다는 것을 의미한다
- Add stairway
-1500*300짜리 계단 만들기(rect)

==> 첫 평면도 완성!
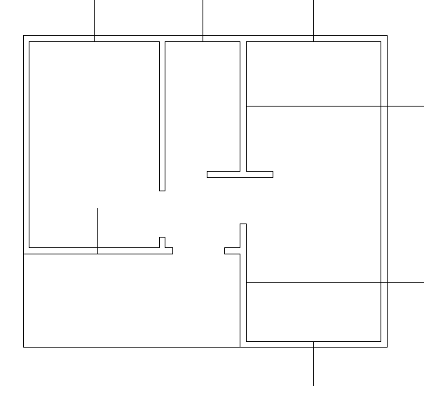
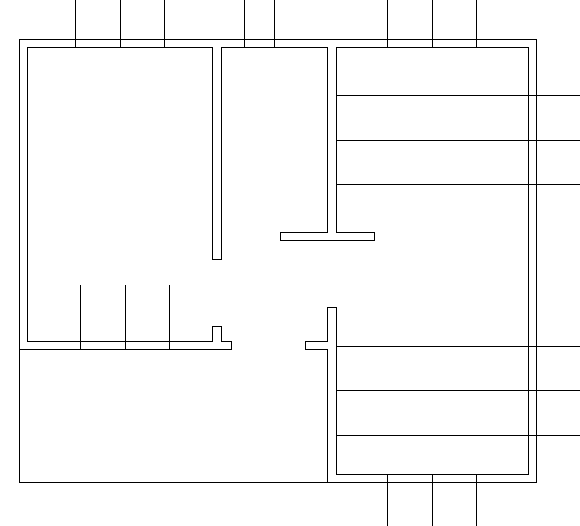
HATCHING
✔Hatch (hatch) _만약 dialogue box 나오지 않으면 HPDLGMODE를 1로 set해라 / solid로 시작해서 properties에서 변경하는 거 추천
✔Hatch Edit (he)
✔Recreate boundary (HARCHGENERATEBOUNDARY) :
✔Gradient Hatch
✔Match Properties (ma) : 원하는 pattern을 클릭한 뒤 다른 곳을 해당 pattern과 같게 만든다
✔Draw Order (draworder) : 순서(앞, 뒤) 바꿔준다
*scale 바꿔주면서 하기
#mission2 _Hatch the walls, porch, stairway, and bathroom

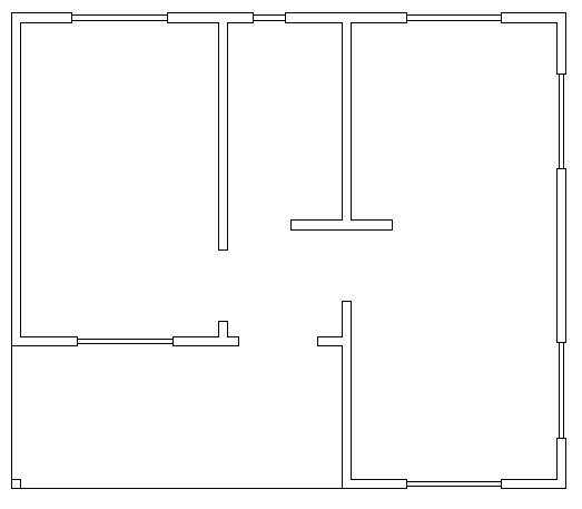
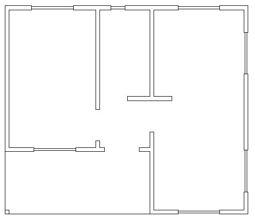
DIMENSIONING
✔Dimension Types
- Angular (dimang) : 각도
- Arc (dimarc)
- Radius (dimrad) : 반지름
- Linear (dimlinear)
- Aligned (dimaligned)
- Dim (dim) : 어떤 것이든 자동으로 측정해줌
✔Terminologies
- Dimension line, text
- Arrowhead
- Extension line
✔Rule
- Minimal dimension lines
- No crossing !!
✔Dimension style
'Interior Design > 2D CAD' 카테고리의 다른 글
| AutoCAD _05 Layers (1) | 2021.04.09 |
|---|---|
| AutoCAD_ 03 도형 그리기2 (0) | 2021.03.26 |
| AutoCAD _ 02 도형그리기1 (0) | 2021.03.19 |
| self) 단축키 공부 (0) | 2021.03.04 |